New House
New Home
General Information
New Plat (1 Lot)
Lot and Set Backs
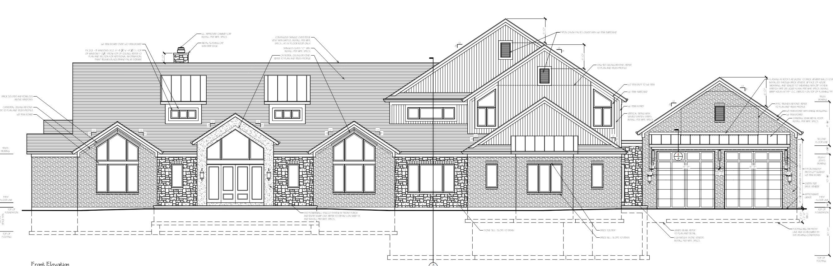
Front Elevation
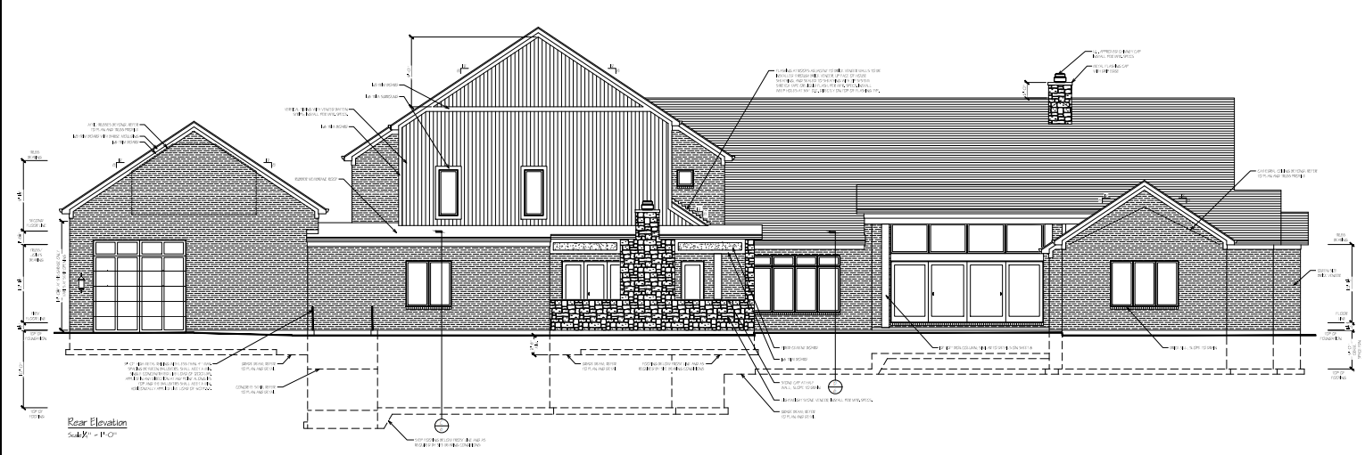
Back Elevation
New House Floor Plan
DIY Information
Houzz Website
Contractors
Contractors drive around
Contractors (Dayton HR)
House Build Notes
Warren County Tax Map
Build Show Network
How to Build Your Home
How to Build Your Home - 2
White Bluff
White Bluff pictures
White Bluff floor plan
White Bluff Parade of Homes
Move Sewer
McGill Smith Punshon, Inc. (Construction Drawings)
Bayer Becker (Construction Drawings)
Diggit Excavating
Local Companies
Studer Designs
Clearcreek (builder and wood working)
Catalyst Custom Homes (Builder - Springboro)
Urban Timber Cincinnati
Affordable Glass & Mirros (Glass Doors/showers etc)
Builders First Source
Mccabe Lumber
Custom Distributors
Nisbet Brower
Fergusons
Snyder Brick & Block
Reading Rock
Lighting EFX
Factory Lighting
Winsupply Plumbing Fixtures, etc.
Dayton Fireplace Systems
Iron Railings (inside & Out)
Cincinnati Stairs
Fasto Real Estate Solutions
Pools
Heatwave Pools
Royal swimming pools
American aqua designs lazy rivers
Endless pools - Fast Lane
Companies
Cabinet protectors
Moen
Fans for Kitchens & Baths
Thermostats
Builder Brigade
Prosoco
Owens Corning Wear Deck (composite Lumber)
York Flashings
General Contractors
Brent Thomas Renovations (Brent Crank)
Premier Construction & Painting Services
Richardson& Rice
Foundation
Superior walls (precast)
KOI precast walls (Kentucky)
Jaco waterpoofing (Cincinnati)
DryEffect waterpoofing (Cincinnati)
Crawl Space
Article
Polygaurd (Sealants & Barriers) waterpoofing
Link-Seal (seals penetrations from basement)
Halo Interra Insulation
Warmboard ($10/sq ft)
Radient Floors (Lebanon)
Framing
Modified Monopoly Framing (perfect wall system)
SD Building (Homearama Dayton 2022)
Beauco Framing
DJT Framing
Huberwood (ZIP)
Extreme Panel Walls
InSoFast X Bracket System
Modified Monopoly Framing - Easier + Cheaper Method
High performance building suppiles (extoseal tape)
Tremco (fluid air membrane)
Tap to Seal Zip to Foundation
Soudal - Strong adehesive for advantec subfloor
Aluma Flash (protective cover)
Sill Dry (Window and Door flashing)
I Joist for framing
Frame meets concrete
Roof/Attic
Tamlin Roffing & Windows (Gutters & Siding)
Majic Attic Lift
Majic Stairs - Full Sized Motorized Attic Staircase!
Roof Fortification
Atlas Insulation for roof
Insulation for roof (Hunter Panels)
Sharkskin underlayment: Goes over Hunter panel (Water tight)
Insulation for roof (Atlas crossvent)
Santa FGe utlra 70 Dehumdifier
Vapor barrier under shingles (vapor dry)
Exterior/siding
Lumbar Plus
OC™ Lumber Structural Framing (composite)
Super Wood (Inventwood)
Stephenson Exteriors
Vision Technologies (Siding, Windows, Doors, gutters)
James Hardie Siding
PVC ceiling planks
PVC that looks like wood (Modern Mill)
Thermally treated Wood Planks
Thermally Modified Hemlock with End Matching
Arbor Wood - Thermally treated Wood Planks
LUX Architectural Products - Metal siding (looks like wood)
Masonory
Masonry work (Kettering)
Masonry work (Cincinnati)
Tri-State Brick & Block Masonry
Flashing Base before brick & Stone
Nova brik (mortarless)
Evolve Stone
Precision brick and stone
Stucco
Brick Lime Washing - Rombio
General Shale Brick
Lights XMAS)
Gas Latern Lights (Bevolo)
*** XMAS Lights ***
Jelly Fish XMAS Lights RGB
Everlights RGB
Gemstone - RBG & White
Windows & Doors
Carden Door Company (Mason)
Black Badge doors
Pella Steady Fast (install from inside)
Panoramic Doors
Folding glass doors (9x12) most cost effective
Actiwall
Jeld Wen (Windows and Doors)
Quantum(Windows and Doors)
Iron wrought doors
Glass Garage Door
Privacy Glass
Garage
Overhead Garage Doors
Cloplay (Glass garage doors)
Raynor(Glass garage doors)
Trusscore (walls)
Hexglow lighting
GFC concrete coatings
Driveway/Stamped Concrete/Decking/Pergola/Fire pit/Grill
Supracrete
Trusdale & Son Sealcoating & Paving
Creech's Ohio Valley Stone
TruStone Distributors
Pergolas and decks (Titan building products)
MBRICO - Tile for decks
Progressive screens
TimberTech Vintage Collection
Camo Fasteners (wedgclip)
Outdoor fire pit & Grilling
Vuba Stone
Interior Rough In
HVAC/Radient
Airtron
Schmidt Heating and Cooling
Peak Heating and Cooling
JM Mechanical
Ed Rike Plumbing, Heating & Air
Comfort Solutions (Lebanon)
Positive Energy (Passive House)
Rheia comfort
HVAC Design
HVAC (ERV-HRV)
Lifebreath ERV
HVAC Wall Penetrations
Plumbing
Neiman Plumbing
Ken Neyer Plumbing
Nixco Plumbing
Aquor faucets/products
Hot and Cold outdoor faucet
Mounting blocks
Flashing for penetrations (Quick Flash)
Electrical/Lighting
Lutron
Aaron Smith Electric
Cullen Electric
Prestige Electric (Homearama - Dayton)
Home Network
HALO Home QuickLink Low Voltage MicroEdge™ Smart
DMF lighting (2" low voltage used on house)
Outdoor Customm lighting
Outdoor electric Box
Countertop Receptacles
Low Volatage/AV
Advanced Installations (Dayton)
Home Assistant
Fastcabling
UniFI
Dream Machine Pro Max
Halo lighting
True Cable
Outdoor custum lighting
Crutchfield (audio)
Lutron
Insulation
Liberty insulation
Sprayfoam insulation cincinnati
Dr energy saver cincinnati
31W Insulation
Priority Insulation
Rigid-er. Mineral Wool. Insulation
Amazon Fasteners
Interior Finishing
Drywall
Superior Drywall
Kitchens & Custom Cabinets
Cincinnati Kitchens
Sims-Lohman Kitchen & Granite (dayton)
Signatry custom cabinets
Kinsella cabinets
A. Flottemesch & son inc Cabinets
Evolodesign
Bath rooms
Wedi
Schluter Systems
Doors
Pocket Doors (cavity slider)
Sugatsune MFU1200 - Flush Sliding Door System (video)
HD Pocket Doors
Sun Mountain Custom door
Timber and Hutch Doors
Black Badge doors
Glass doors and dividers (Weldwork)
Glass doors and dividers (Crystalia Glass)
Rustic Luxe Design(Custom Doors)
Rockwood(Custom Doors - Ohio)
Cloplay (Glass garage doors)
Misc
Luxury Vents (Fittes)
Flush mount into walls
Fire Place (Stellar)
Stone Mountain Castings & Design (Stone mantel)
Ryans All Glass
Trim
Steve Barber Construction
C&W Woodworking
Elevated Finish Carpentry
Alice Custom Woodworking
Vintage Timberworks
Reclaimed lumber (Floors, Beams, Mantels)
Prebuilt Timber Trusses
Elite Trimworks
Osborne Wood Products
Architectural Depot
Viewrail - Stairs
Exact Color Caulk (Sashco)
Wood Planks/Brick
UFP EDGE - Ceiling Planks
Dura Groove
Wood Planks
New Barn wood -Ship Lap for ceiling
Forever Barnwood
Advantage Lumber -Ship Lap for ceiling
Gen Stone (brick and Stone)
Hidden Rooms
Fort Knox Vault Doors
Parkers safes and security
Steel Mesh for walls
Bullet proof panels
Survive A Storm Shelter
Safe Room Rebate Program
Hidden Room
Hidden Door
Hidden Murphy Door
Sugastune Hidden Hinges
Sugatsune MFU1200 - Flush Sliding Door System (video)
Elevator
Vuelift (Octagonal Savaria Vuelift )
Custom Home Elevator & Lift Co., Inc. (Blue Ash)
Flooring
Ram Board (protective covering)
Schul Tile & Stone Company
Concrete Coatings
Riterug Flooring
Brick Flooring
Flooring Factory (Nantucket coastal collection)
Build Direct(4mm robin bandsawn oak flooring)
Stellar Floors
Hull Forest products
Delta millworks
Schluter electric floor warming
Jlynn Properties